Номер ЛОТА: 2086. Строящееся помещение 1700 м².
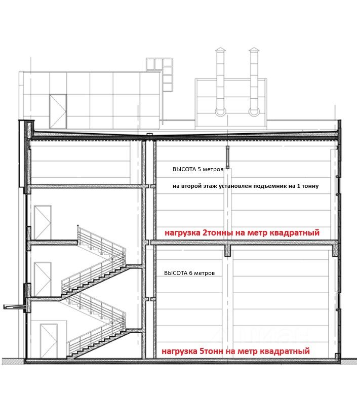
Высота потолка 6 метров. Полы антипыль.
Индивидуальная погрузочная зона на отметке 0.000, тепловая завеса, приточно-вытяжная вентиляция, отопление, кондиционирование, подъёмник г/п 1т, базовая отделка в офисном блоке, от 125кВт электроэнергии. По запросу покупателя возможно увеличение мощности вплоть до 1 МВт.
Водоснабжение и канализация бытовые.
Вся территория огорожена с видеонаблюдением.
ДАННЫЙ ОБЪЕКТ ВОЗМОЖНО КУПИТЬ В ЛИЗИНГ С АВАНСОМ от 10%, НА СРОК ДО 5 ЛЕТ, С НАЛОГОВОЙ ВЫГОДОЙ ДО 45%!








